
UPDATED:
Key Details
Property Type Single Family Home
Sub Type Single Family Residence
Listing Status Active
Purchase Type For Sale
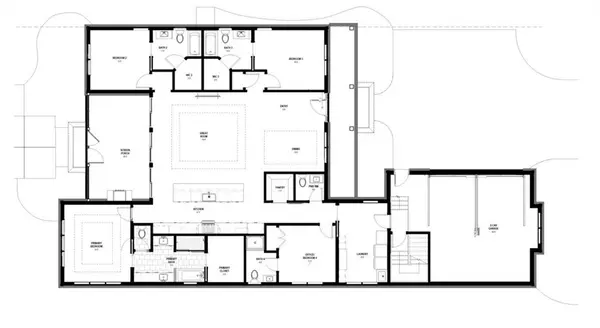
Square Footage 2,776 sqft
Price per Sqft $308
Subdivision Steelwood
MLS Listing ID 7647251
Bedrooms 5
Full Baths 5
Half Baths 1
HOA Fees $2,420/ann
HOA Y/N true
Annual Tax Amount $283
Tax Year 283
Lot Size 8,363 Sqft
Property Sub-Type Single Family Residence
Property Description
Location
State AL
County Baldwin - Al
Direction From I-10. Head North on 59. Turn right onto Industrial Park Drive. Turn left onto 49. Turn Right on Truck Route 17 Rd. Continue for a couple of miles and you will see Steelwood Ridge Rd on the Left. Once through the gated entrance, stay on Steelwood Ridge Road for a couple of miles and turn Right on to Chapel Grove S. Lot will be located on the Left.
Rooms
Basement None
Primary Bedroom Level Main
Dining Room Other
Kitchen Kitchen Island, Other
Interior
Interior Features Other
Heating Electric
Cooling Electric
Flooring Other
Fireplaces Type None
Appliance Microwave, Other
Laundry Lower Level
Exterior
Exterior Feature Private Yard
Garage Spaces 2.0
Fence None
Pool None
Community Features Business Center, Clubhouse, Country Club, Fishing, Gated, Homeowners Assoc, Lake, Park, Pickleball, Pool, Restaurant, Tennis Court(s)
Utilities Available Electricity Available
Waterfront Description None
View Y/N true
View Other
Roof Type Composition
Total Parking Spaces 2
Garage true
Building
Lot Description Back Yard, Level
Foundation Slab
Sewer Other
Water Other
Architectural Style Craftsman
Level or Stories One
Schools
Elementary Schools Loxley
Middle Schools Central Baldwin
High Schools Robertsdale




